Ŀư¿ù 100mm




Ŀư¿ù 120mm






Ŀư¿ù 130mm





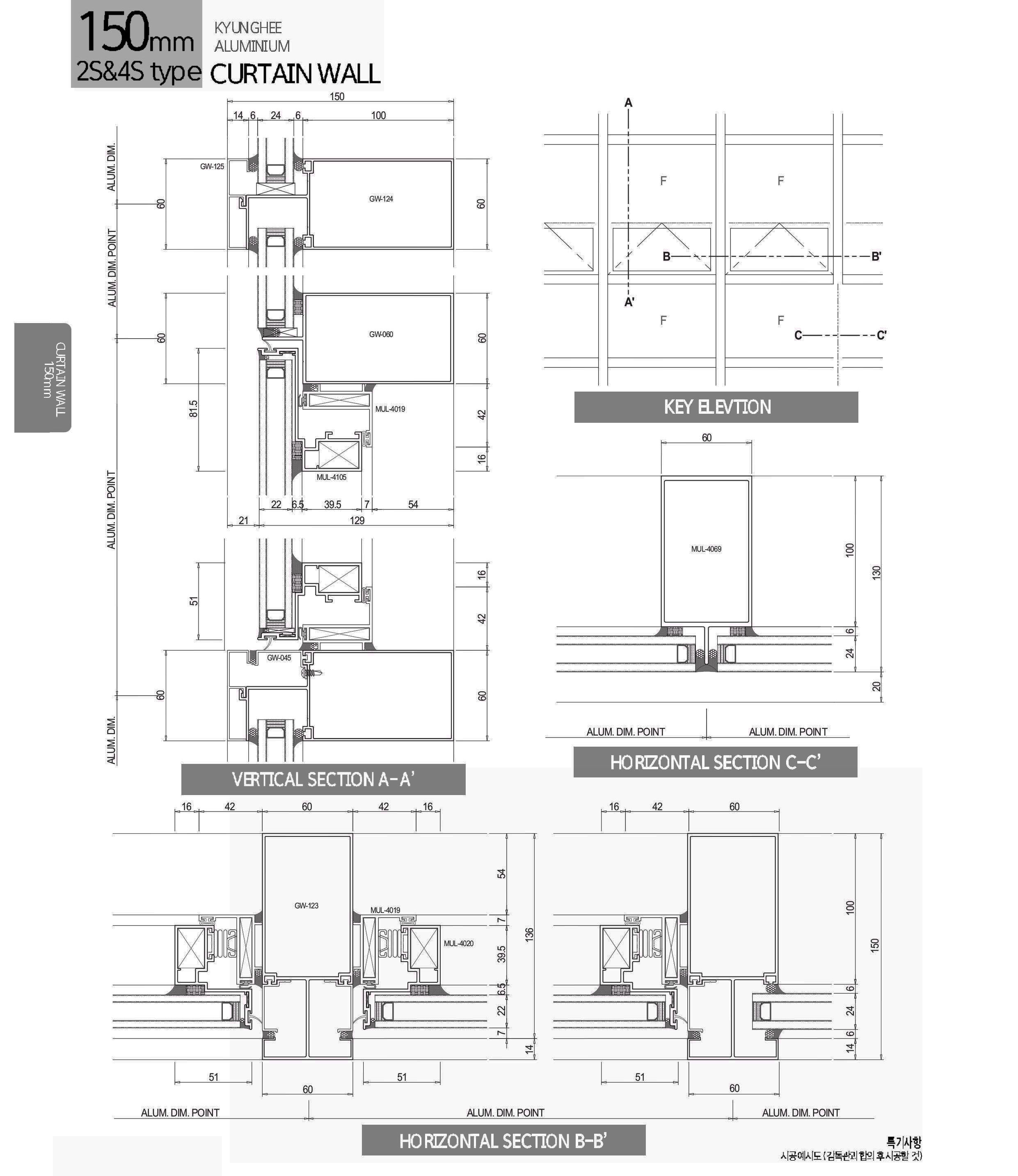
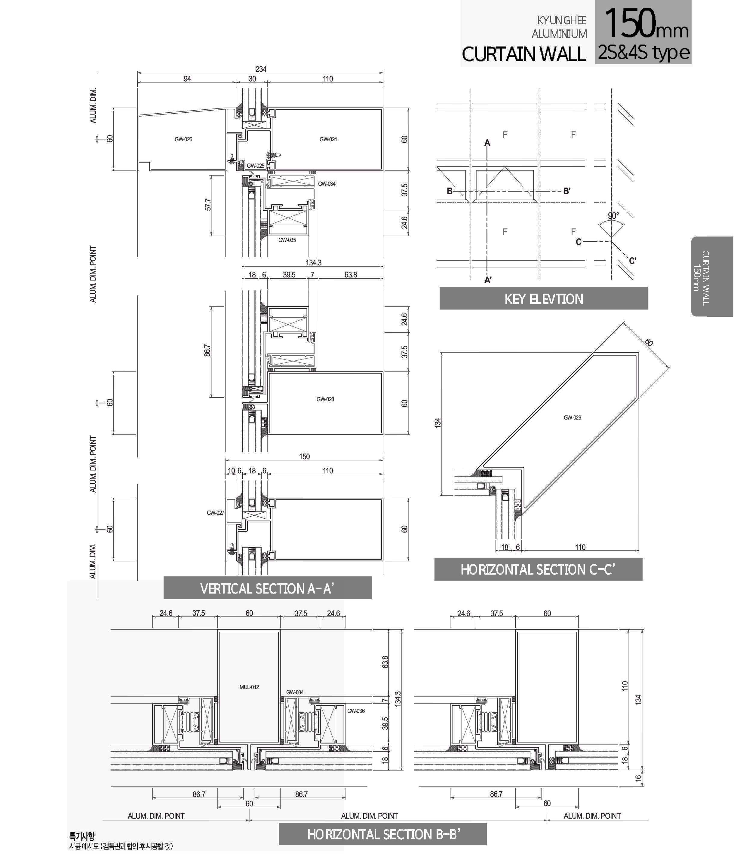
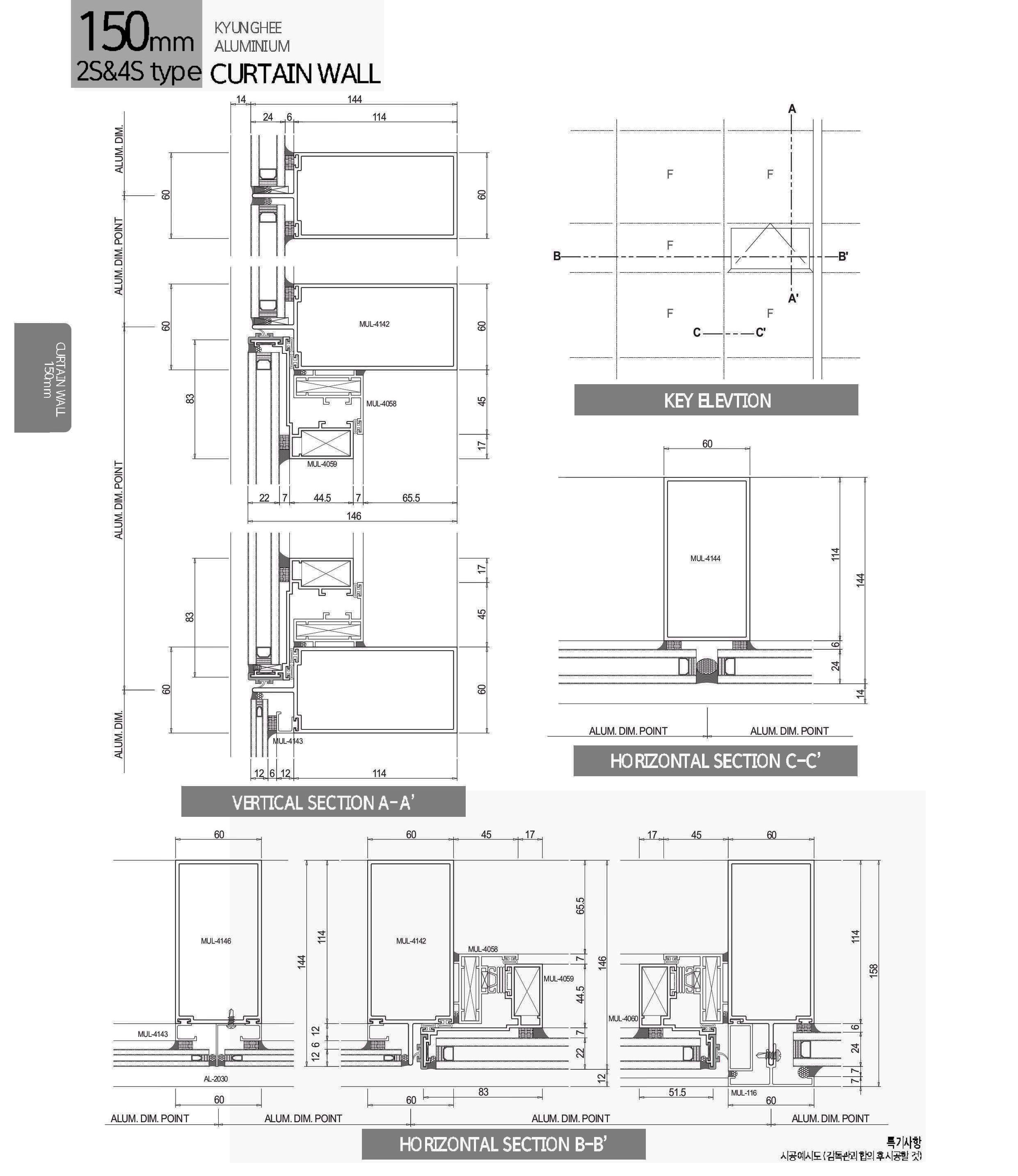
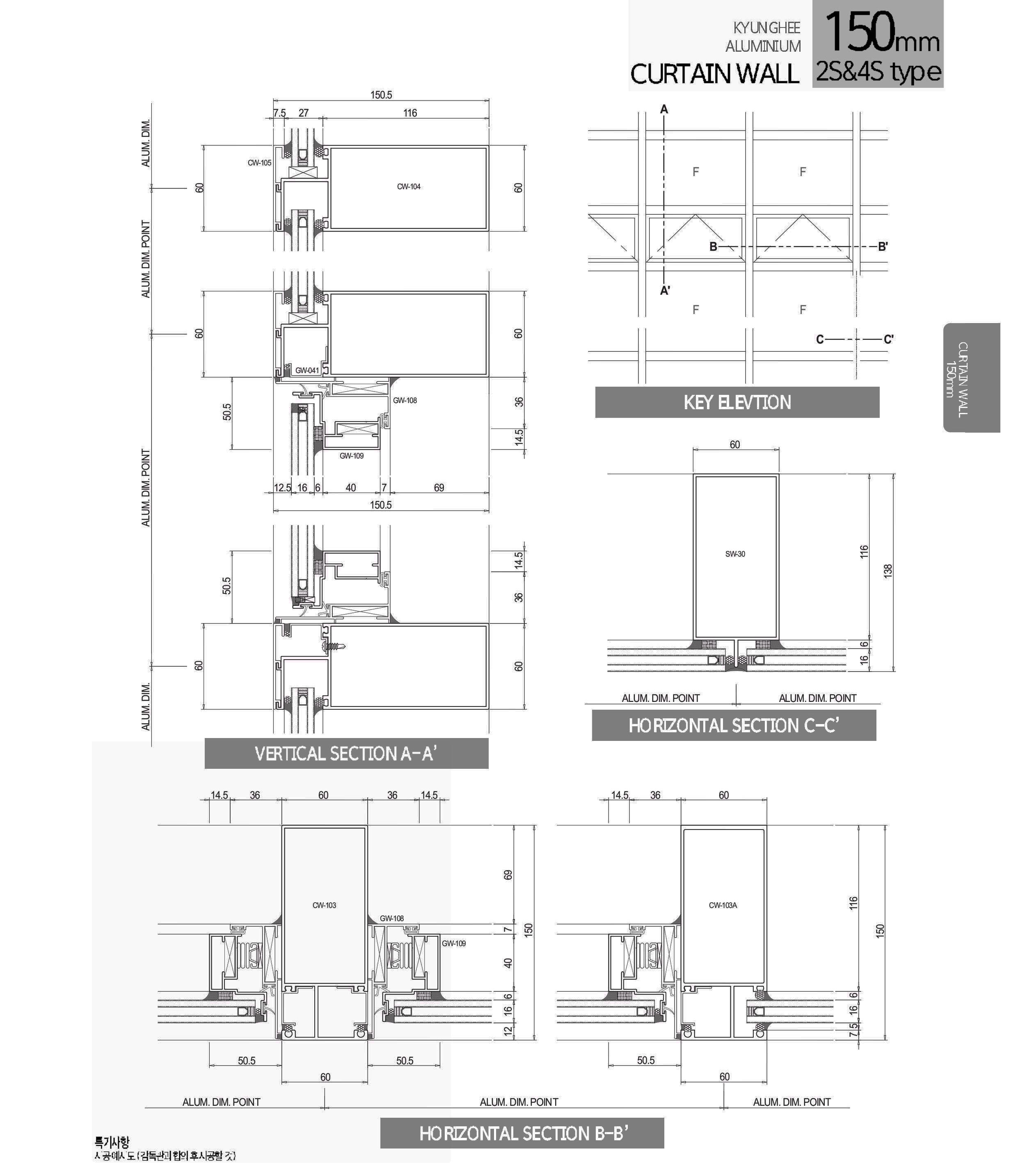
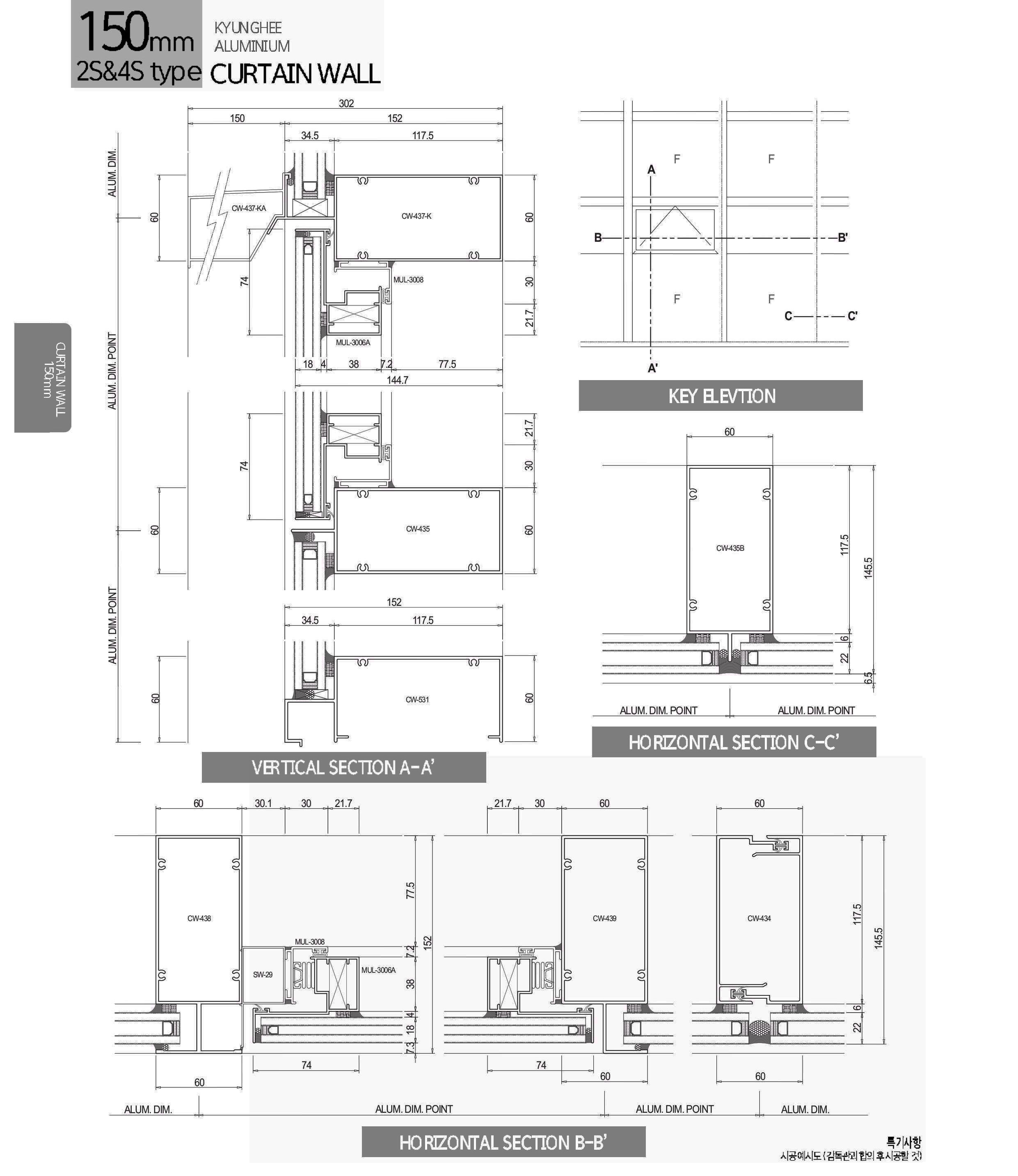
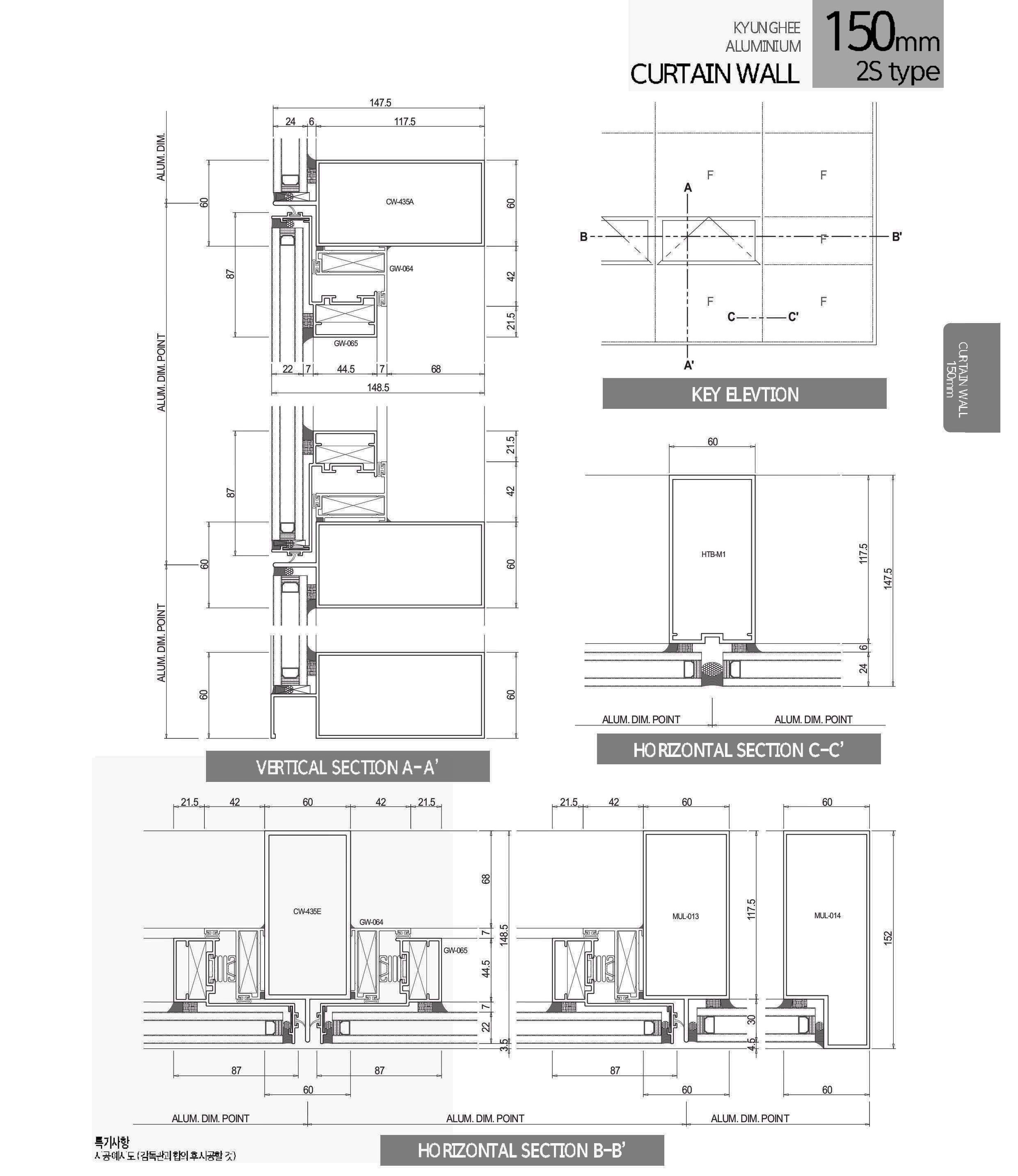
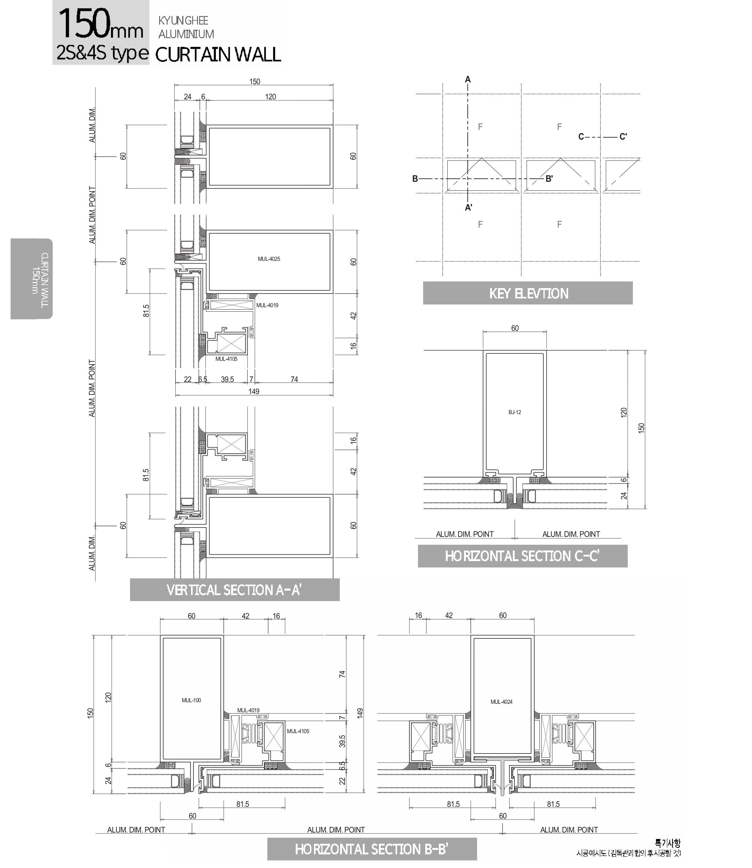
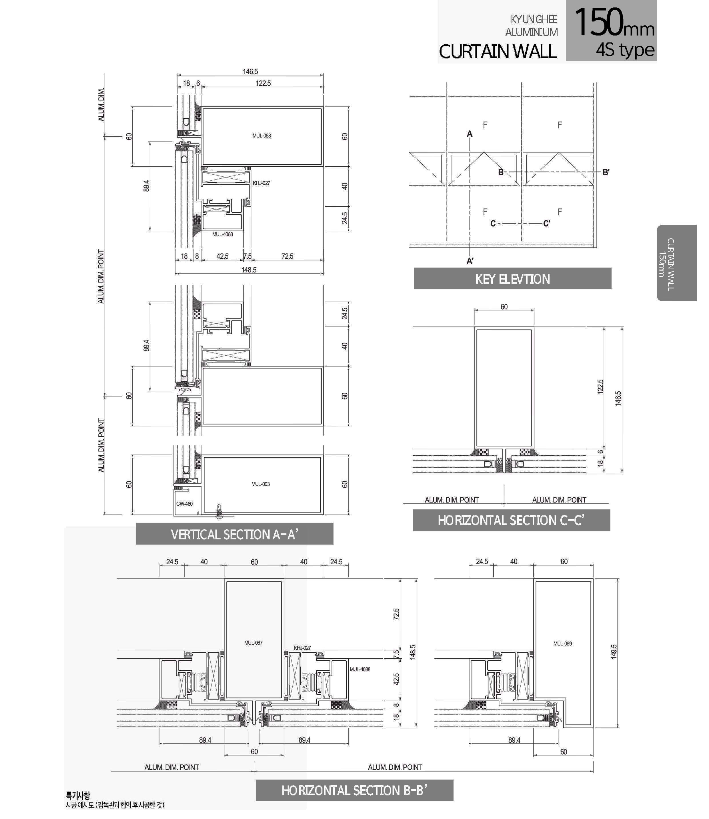
Ŀư¿ù 150mm









Ŀư¿ù 160mm
Ŀư¿ù 180mm
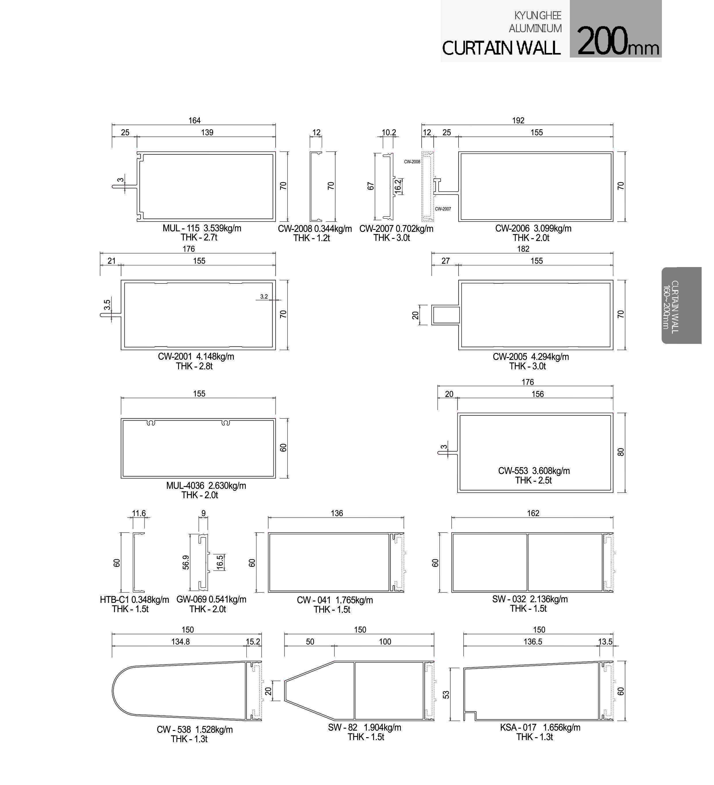
Ŀư¿ù 200mm







130mm CURTAIN WALL (130mm Ŀư¿ù) - ºí·¢, ½Ç¹ö
-

- ²ÀÁö¹Ù
- CW - 422C 1.944kg/m / THK - 1.9t
-

- ¸¶°¨¹Ù
- MUL - 4301 2.366kg/m / THK - 2.0t
-

- ²ÀÁö¹Ù PJ ÈÄ·½
- MUL - 3008 0.411kg/m / THK - 1.5t
-

- ²ÀÁö¹Ù PJ ¹®Â¦
- MUL - 3006 1.156kg/m / THK - 1.5t







